Reimagining the craftsman bungalow for modern living
An architect and builder team up to reimagine a craftsman bungalow perfectly suited to its owner’s needs, the surrounding neighborhood, and Austin’s climate.

Elizabeth Baird Brown, AIA, and Royce H. Flournoy had already teamed up on several projects when Flournoy approached Baird about designing his personal home. The President of Texas Construction Company, Flournoy wanted to build a home whose style and scale would fit into the fabric of his neighborhood, have “an open and airy feel to it,” and include outdoor spaces that would feel like “an extension to the indoor spaces.” As an added challenge, the project needed to stick to a strict budget. Baird, Principal and Founder of Elizabeth Baird Architecture, was remodeling several craftsman homes and was familiar with their charms and their less desirable traits. Here’s how she created a modern design that doesn’t lose sight of its roots.
A modern floor plan
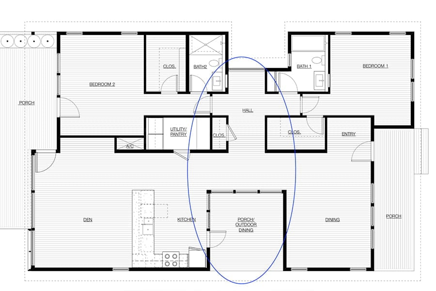
“The idea was to take the typical bungalow form and pull it apart a bit to allow for more open, flowing, and light-filled spaces on the interior,” Baird said. To do this, she created an open concept, single-story floor plan with a vaulted ceiling that makes the home feel more spacious than its 1,680 square feet. She brought in light on three sides with a full wall of windows facing the backyard and floor-to-ceiling windows on both ends of a perpendicular hallway. In this way, she solved a few of the craftsman’s biggest challenges, including a lack of light in the center and an isolated kitchen. “My goal is not to turn on a light inside during the day,” she said.

Key to bringing light into the home’s center is the perpendicular hallway anchored by floor-to-ceiling windows on both the east and west ends. Combining this feature with the full wall of windows on the north side, Baird was able to bring in light from three sides.
Letting in light and leaning into outdoor living
To avoid excessive heat gain from the 30 windows included in the design while also accommodating more outdoor living, Baird leaned into a quintessentially southern feature: the porch. “Spending time outdoors is a part of the culture here,” Baird said. The east-west hallway opens up to an outdoor dining room that's protected by the roof. Similarly, generous porches shade the windows on both the north and south sides.

The single-story plan and eight-foot-tall 100 Series Picture Windows make it feel like the “interior spaces spill out into the exterior,” Baird said. A key connection in a climate that accommodates outdoor living nine months out of the year.
Products Shown
Strategic window placement that preserves privacy
Avoiding solar heat gain wasn’t the only challenge to designing this light-filled modern bungalow. Privacy was a major consideration too, because the home has a backyard accessory dwelling unit (ADU) above the garage. To shield views of the main house without sacrificing light, Baird placed the ADU windows higher on the wall. The ADU also has a balcony so renters have their own outdoor living space, which she designed to face a large oak tree on the side of the property. Initially, Flournoy was so smitten with both spaces that he wasn’t sure which one he’d reside in.

Austin’s regulations limit two-story ADUs to 550 square feet, so Baird integrated some clever techniques to maximize the space. She designed an airy balcony, created an open-concept floor plan, and placed the stairs used to access the second-floor apartment under the roof but outside of the conditioned space so it wasn’t counted as a part of the overall square footage.
Products Shown
Selecting the right windows
Baird and Flournoy chose our 100 Series windows because they offered the right balance of aesthetics and cost savings. Flournoy was familiar with the product from past client projects, and Baird liked the way the “slim lines” of the windows fit the modern look she was bringing to life. As a more affordable option, the 100 Series product line allowed them to preserve all the openings in her original design. "We were very budget conscious with our project, and we were looking for a reasonably priced window that felt substantial,” Flournoy said. Additionally, 100 Series windows are well suited to Austin’s hot summers. Made of innovative Fibrex® material, it’s twice as strong as vinyl and can withstand temperatures of up to 150°F.

The street-facing side presents more traditionally with 100 Series Single-Hung Windows, a deep porch, and teardrop wooden siding. Upon entering though, its more modern side becomes apparent.
Products Shown
After living in the home for several years, Flournoy reports the “windows and natural light” are what he loves most — “It’s a very bright and happy home.”


